Realty World Türkiye

GEBZE DİLOVASI OSB'DE 5 TONLUK VİNÇ 2 KAT 1050m2 KİRALIK FABRİKA

Gebze Osb Mah Gebze Kocaeli
330.000

Detaylar

İlan No
6901-319782531
İlan Giriş Tarihi
09 Kasım 2025
Güncelleme Tarihi
09 Kasım 2025
Fiyat
330.000
Metrekare
1.050
İşlem Tipi
Kiralık
Gayrimenkul Tipi
Fabrika
Bölüm Sayısı
7
Banyo Sayısı
4
Bina Yaşı
15 üzeri
Binadaki Kat Sayısı
2
Bulunduğu Kat
Müstakil
Isıtma
Sobalı
Kredi Olanağı
Uygun
Brüt Kullanım Alanı
1.050 m²
Net Kullanım Alanı
1.000 m²
Yapının Durumu
Boş
Tapu Durumu
Kat irtifak

DİLOVASI OSB’DE TEM’E CEPHE ÜST DÜZEY KİRALIK FABRİKA!

Dilovası Organize Sanayi Bölgesi’nin en prestijli caddelerinden Ceyhan

Caddesi üzerinde, TEM Otoyolu’na cepheli ve E-5 ile TEM’e yalnızca 2

dakika mesafede bulunan bu tesis, hem üretim hem de lojistik

faaliyetler için benzersiz bir lokasyon sunuyor.

Üretim, tekstil, ambalaj, otomotiv yan sanayi, lojistik

ve depolama gibi birçok sektöre uygun altyapısı ile hemen

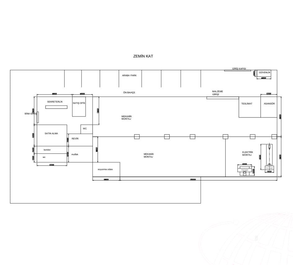
kullanıma hazır olan toplam 1.050 m² kapalı alanlı:

850 m² yüksek tavanlı imalathane (5.20 m tavan yüksekliği)

200 m² modern ofis alanı (5 bağımsız ofis + yönetim odası)

Asma kat, yemekhane, WC’ler, su deposu, hidrofor sistemi

Düz ayak kamyon girişine uygun

2 Ton kapasiteli yük asansörü

Sanayi elektriği altyapısı hazır

Propan Tüp ısınma sistemi

2 adet 5 tonluk vinç

Açık otoparklı

Emsallerine göre hem konum hem de fiyat bakımından fazla seçeneği

olmayan gayrimenkulümüzü görmeden karar vermeyin!

SATILIK & KİRALIK DİĞER ALTERNATİFLERİMİZ İÇİN WEB

SİTEMİZİ ZİYARET EDİNİZ...

İlgili Gayrimenkul Danışmanı

Aşkın TANRIVERDİ

Tel :(216) 445 15 84

Gsm:(532) 164 44 65

İç Özellikler

  • ADSL
  • Alarm (Yangın)
  • Boyalı
  • Fiber Internet

Dış Özellikler

  • Asansör
  • Hidrofor
  • Kablo TV - Uydu
  • Otopark
  • Su Deposu
  • TV Yayını

Manzara

  • Şehir

Cephe

  • Batı

Ulaşım

  • Anayol
  • Cadde
  • Minibüs
  • Otobüs Durakları
  • TEM Otoyolu

Konum

  • AVM
  • Belediye
  • Cami
  • Hastane
  • Market
  • Okul
  • Park
  • Sağlık Ocağı
  • Semt Pazarı
  • Şehir Merkezi

Paylaş

Mesaj Gönder